

截面高度 H;截面宽度 B;腹板厚度 Tw;
翼缘厚度 Tf;交接圆弧半径 Rw
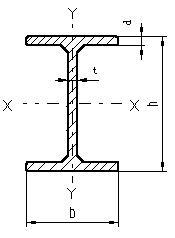
工字钢也称钢梁,是截面为工字形的长条钢材。其规格以腰高( h)*腿宽(b)*腰厚(d)的毫米数表示,如“工160*88*6”,即表示腰高为160毫米,腿宽为88毫米,腰厚为6毫米的工字钢。工字钢的规格也可用型号表示,型号表示腰高的厘米数,如工16#。腰高相同的工字钢,如有几种不同的腿宽和腰厚,需在型号右边加a b c 予以区别,如32a# 32b# 32c#等。工字钢分普通工字钢和轻型工字钢,热轧普通工字钢的规格为10-63#。经供需双方协议供应的热轧普通工字钢规格为12-55#。工字钢广泛用于各种建筑结构、桥梁、车辆、支架、机械等。
上一条:已经没有了
下一条:工字钢